郑州朴华科技

15890137611

新闻资讯

实时记录行业动态,助力企业解决环保难题。

如何治理软包装印刷车间VOCS废气

发布时间:2018-08-17 返回列表

包装印刷行业的VOCs排放主要集中在印刷、烘干、复合和清洗等生产工艺过程中,主要来源于油墨、粘合剂、涂布液、润版液、洗车水,溶剂等含VOCs的物料的自然挥发和烘干挥发。软包装印刷是VOCs废气排放大户,估算超过120万吨/年,从2015年起,包装印刷业被国家列为VOCs排污收费试点行业,软包装印刷行业面临巨大环保压力,软包装行业的VOCs治理是一个系统工程。

RCO催化燃烧设备

案例:有机废气VOCs处理设备RCO催化燃烧设备安装在郑州客户厂区

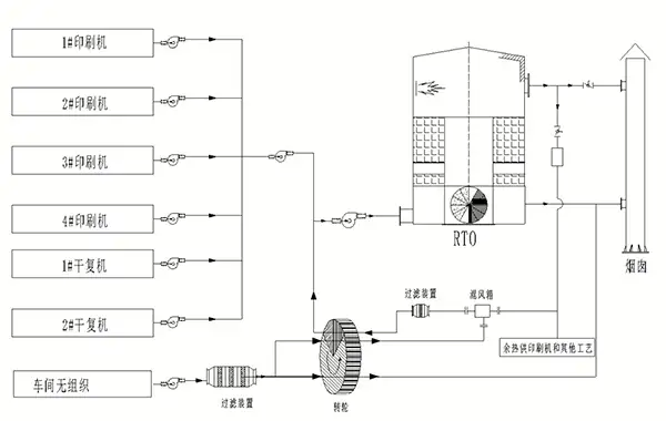
软包装印刷废气具有以下特点:废气风量大浓度低;废气风量、浓度变化大;开机、换单时间不固定;溶剂成分复杂多变;不受控部分多,包含墨槽封闭性、烘箱密闭性、车间环境气流流向、车间温度等,因此,包装印刷行业VOCS废气治理工况异常复杂。

从二十世纪九十年代起,我国广大软包装从业者及相关学者就不断探索VOCS废气排放的治理技术路线,经历了活性炭吸附、溶剂回收、催化燃烧、转轮+RTO、等离子分解、光催化分解等各种技术。这些治理技术,要么处理不达标,要么能耗巨大,要么会产生二次污染,一直没有获得良好的经济和社会效益,在软包装印刷行业并没被使用者认可。

有机废气处理

通过对近30多家软包装企业实际案例应用跟踪发现,“减风增浓+RTO”技术路线,有效的解决了包装印刷车间有组织废气的净化问题,但对印刷车间无组织废气处理的效果却微乎其微,如何全面的解决软包装印刷车间无组织的VOCs废气排放成为需要探索的新课题。

朴华科技是郑州环保设备厂家,如果您有工业除尘器、有机废气VOCs治理、烟气脱硫、脱硝设备需要咨询,欢迎致电:158-9013-7611 。

在线咨询
『最新资讯』
『推荐产品』
活性炭+催化燃烧设备(RCO)

活性炭+催化燃烧设备(RCO)

朴华科技设计生产的活性炭+蓄热式催化燃烧(RCO)设备是利用活性炭模块对挥发性有机废气(VOCs)进行吸附收集、压缩、提高浓度,然后把高···……

沸石转轮+催化燃烧设备(RCO)

沸石转轮+催化燃烧设备(RCO)

沸石转轮+RCO催化燃烧设备是目前有机废气处理领域应用较为实用的一种工艺。采用吸附-脱附-冷却三项连续程序,边吸附边脱附。沸石转轮先对有···……

蓄热式燃烧分解设备(RTO)

蓄热式燃烧分解设备(RTO)

郑州朴华科技设计生产的蓄热式焚烧系统(RTO)是一种有机废气处理设备,与传统的催化燃烧、直燃式热氧化炉(TO)相比,蓄热式焚烧系统(RT···……